Меню Поиск Разместить Избранное Кабинет

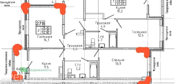
Продается 2-комн. квартира, 52.8 м²

Объявление 16228, обнов. 03.11.25
21
4 150 000 ₽ 78 598 ₽/м²
Следить за ценой

Подписка на изменение цены

Мы сообщим вам, если цена объекта изменится
или на почту
Нажимая кнопку «Подписаться» вы соглашаетесь с политикой конфиденциальности
Купить в ипотеку:
Адрес
Тип жилья
Общая площадь
52.8 м²
Площадь кухни
9.7 м²
Этаж / всего
6 / 17
Тип дома
Монолит-кирпич
Санузел
Совмещенный
Лоджия
1
Ремонт/отделка
Требуется ремонт

В продаже отличная 2-х комнатная квартира ,в новом ЖК "Счастье". Самая удачная планировка- распашонка. Лоджия выходит из кухни. Монолитно-кирпичный дом,во дворе есть детская и спортивные площадки . На территории много парковочных мест.Сад,школа ,магазины ,в 2-х минутах ходьбы.

Белоногова Юлия Викторовна Номер объявления SD26-16228.

Welcome (Вэлком)
По вопросам покупки обращаться:
Позвонить
Скажите агентству, что нашли это объявление на КРАСДОМЕ
Написать

Похожие объявления

Не можете найти нужный вариант?

Оставьте заявку на подбор объекта и мы отправим ее трем проверенным нами агентствам недвижимости. Они возьмут все вопросы поиска на себя.
Нажимая кнопку «Отправить заявку» вы соглашаетесь с политикой конфиденциальности.