Меню Поиск Разместить Избранное Кабинет

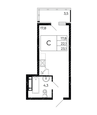
Продается студия, 23.1 м²

Объявление 91645, обнов. 03.11.25
7
3 696 000 ₽ 160 000 ₽/м²
Следить за ценой

Подписка на изменение цены

Мы сообщим вам, если цена объекта изменится
или на почту
Нажимая кнопку «Подписаться» вы соглашаетесь с политикой конфиденциальности
Купить в ипотеку:
Адрес
Аксайский район, Аксай, пр-т Аксайский, 23а
Новостройка
Срок сдачи
4 кв 2025 — по проекту
Состояние
Отделочные работы
Застройщик
Доннефтестрой
Общая площадь
23.1 м²
Этаж / всего
3-7, 9, 11-14 / 15
Тип дома
Монолит-кирпич
Тип и серия дома
Новой планировки

Черная пятница в ДОННЕФТЕСТРОЙ уже сейчас! Цены уровня 2020 г.! !!!! Только в ЖК «Флора» есть возможность купить квартиру с использованием семейной ипотеки с детьми ЛЮБОГО ВОЗРАСТА!Успейте забронировать квартиру в ЖК «Флора» со сдачей в этом году!Предложения в этом месяце:•⁠ ⁠Скидки до 32 000₽/м² (учтено в цене)•⁠ ⁠Семейная ипотека от 2,5% на весь срок без удорожания•⁠ ⁠Квартиры от 14 500 ₽/мес.•⁠ Ремонт «под ключ» в подарокВ ЛЮБОЙ ДЕНЬ АКЦИЯ МОЖЕТ БЫТЬ ОТМЕНЕНА!_____________Внимание! Выгодные условия по Семейной ипотеке скоро отменят! Уже скоро условия программы «Семейная Ипотека» могут измениться:•⁠ ⁠первоначальный взнос вырастет с 20,1% до 40,1%,•⁠ ⁠ежемесячные платежи увеличатся почти вдвое,•⁠ ⁠ставка поднимется до 12% и будет зависеть от количества детей,•⁠ ⁠оформить семейную ипотеку можно будет только один раз на семью.Успейте воспользоваться действующими льготами, пока они ещё доступны._______________Вы можете выбрать один из вариантов отделки:✔Черновая;✔Предчистовая (white-box);✔Ремонт под ключ (2 стилевых решения).Покупая квартиру в ЖК «Флора», Вы приобретаете:- Своя шкoлa- Фонтан- Два детскиx садa- Двoр без машин- Подземные парковки- Наземные многоуровневые парковки- Уникальная благоустроенная, закрытая, современная территория- Круглосуточное видеонаблюдение- Детские площадки- Спортивные площадки- Зоны для отдыха- Колясочные- Новый формат эргономичных планировочных решенийи многое другое.Приобретайте НАПРЯМУЮ ОТ ЗАСТРОЙЩИКА без комиссии и переплат!

ДОННЕФТЕСТРОЙ Номер объявления SD61-91645.

Представитель застройщика Доннефтестрой:
Позвонить
Скажите агентству, что нашли это объявление на КРАСДОМЕ
  • квартиры по цене застройщика
  • комиссия покупателя 0%
  • помощь в получении ипотеки по сниженным ставкам
  • помощь в реализации вашей недвижимости
Написать

Похожие объявления