Меню Поиск Разместить Избранное Кабинет

Продается 2-комн. квартира, 58.15 м²

Объявление 91440, обнов. 09.10.25
4
7 123 375 ₽ 122 500 ₽/м²
Следить за ценой

Подписка на изменение цены

Мы сообщим вам, если цена объекта изменится
или на почту
Нажимая кнопку «Подписаться» вы соглашаетесь с политикой конфиденциальности
Купить в ипотеку:
Адрес
Ростов-на-Дону, Советский р-н, Левенцовский, XI микрорайон, квартал 11-3
Название ЖК
Тип жилья
новостройка
Год постройки
июль 2025
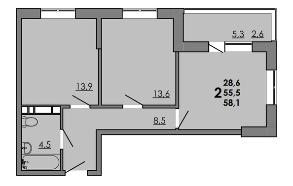
Общая площадь
58.15 м²
Площадь кухни
13.9 м²
Этаж / всего
15 / 15
Тип дома
Монолит-кирпич
Тип и серия дома
Новой планировки
Санузел
Совмещенный
Окна выходят
На улицу
Ремонт/отделка
Хорошее состояние

Жилой комплекс Gray (Грей) представляет собой новый формат жилья в Левенцовке. Во дворах безопасные детские и спортивные площадки, прогулочные зоны, барбекю и многое другое. Большая территория под гостевую парковку, теплый подземный паркинг. На территории комплекса собственный детский сад, в шаговой доступности крупный торговый центр.

Сдаются квартиры без отделки, а если вы мечтаете о ремонте без лишних хлопот, для вас открывается возможность заказать чистовую отделку от застройщика АСИ ГРУПП и включить ее в ипотеку!

Планировки от уютной студии до просторной трёшки отличаются грамотными планировочными решениями, имеют встроенные ниши и гардеробные помещения.

Адрес отдела продаж: пр. Маршала Жукова, 18 Номер объявления SD61-91440.

АльфаСтройИнвест
По вопросам покупки обращаться:
Позвонить
Скажите застройщику, что нашли это объявление на КРАСДОМЕ
Написать

Похожие объявления