Меню Поиск Разместить Избранное Кабинет

Продается 2-комн. квартира, 60.7 м²

Объявление 391544, обнов. 30.10.25
26
9 608 810 ₽ 158 300 ₽/м²
Следить за ценой

Подписка на изменение цены

Мы сообщим вам, если цена объекта изменится
или на почту
Нажимая кнопку «Подписаться» вы соглашаетесь с политикой конфиденциальности
Купить в ипотеку:
Адрес
Краснодар, Прикубанский округ, Ивана Беличенко ул, д. 92 к4
Название ЖК
Тип жилья
новостройка
Год постройки
сен. 2024
Общая площадь
60.7 м²
Площадь кухни
18.8 м²
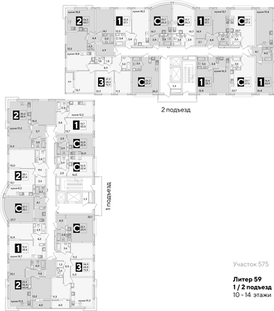
Этаж / всего
12 / 16
Тип дома
Монолит-кирпич
Тип и серия дома
Новой планировки
Ремонт/отделка
Хорошее состояние

«САМОЛЁТ» — концептуальный жилой микрорайон, который расположен на северо-западе Краснодара, в районе Западного Обхода. Квартал спроектирован как «город в городе», поэтому здесь будет всё для комфортной жизни: современные дома с разными планировками, дороги, школы и детские сады, поликлиника, торговые центры, парки и аллеи. Микрорайон находится далеко от промышленных предприятий, сочетает удобство городской жизни и экологически благоприятную среду.

Инфраструктура нового микрорайона:
• Видовые квартиры с панорамным остеклением
• Безбарьерная среда
• Просторные стильные лобби
• Сквозные подъезды
• Квартиры с террасами
• Улучшенная отделка от застройщика
• Подземный паркинг и кладовые
• Видеонаблюдение и круглосуточный пост охраны
• 9 детских садов
• 4 школы в шаговой доступности
• Кольцевая велодорожка
• Аллея спорта
• Собственный пешеходный бульвар 1,6 км
• Дубовая аллея
• 11 павильонов фудкорта
• Светомузыкальный пешеходный фонтан протяжённостью 55 м
• Торговые галереи
• Храм сорока Севастийских мучеников
• Скейт-парк
• Детская акваплощадка
• Детский городок
• Крытая зона для бокса и единоборств
• Площадки для выгула собак
• 9 остановок городского транспорта
• Дороги-дублёры

Приобрести квартиру можно одним из способов:
-субсидированная семейная ипотека 4,5 % на весь срок
-рассрочка до конца строительства
-оплата наличными
-дистанционная покупка

Позвоните сейчас и забронируйте квартиру со скидкой! Номер объявления SD23-391544.

НА ЮГ
По вопросам покупки обращаться:
Позвонить
Скажите агентству, что нашли это объявление на КРАСДОМЕ
Написать

Похожие объявления