Меню Поиск Разместить Избранное Кабинет

Продается 1-комн. квартира, 35.9 м²

Объявление 386129, обнов. 16.10.25
7
5 026 000 ₽ 140 000 ₽/м²
Следить за ценой

Подписка на изменение цены

Мы сообщим вам, если цена объекта изменится
или на почту
Нажимая кнопку «Подписаться» вы соглашаетесь с политикой конфиденциальности
Купить в ипотеку:
Адрес
Горячий Ключ, Ярославского ул, д. 111, кв. 82
Название ЖК
Тип жилья
новостройка
Год постройки
сен. 2022
Общая площадь
35.9 м²
Площадь кухни
10.7 м²
Этаж / всего
1 / 8
Тип дома
Монолит-кирпич
Тип и серия дома
Новой планировки
Санузел
Совмещенный
Балкон
1
Ремонт/отделка
Отделка под ключ от застройщика

Квартира от Застройщика на юге страны в городе-курорте Горячий Ключ, Краснодарский край квартиры комфорт-класса, большая территория под детские, спортивные площадки, парковочные места. Магазин Пятерочка, Магнит, аптека, остановки в шаговой доступности. Отличная шумоизоляция и качественная предчистовая отделка, Автономное отопление, МПО, комплекс находится на не подтопляемой территории.
Условия покупки
- Сельскохозяйственная ипотека не проходит!
- Помогаем оформить семейную ипотеку
- Помогаем оформить IT-ипотеку!
- Рассрочка без % от Застройщика.
- Проводим удалённые сделки!
- Проведём онлайн-показ!
Звоните прямо сейчас!
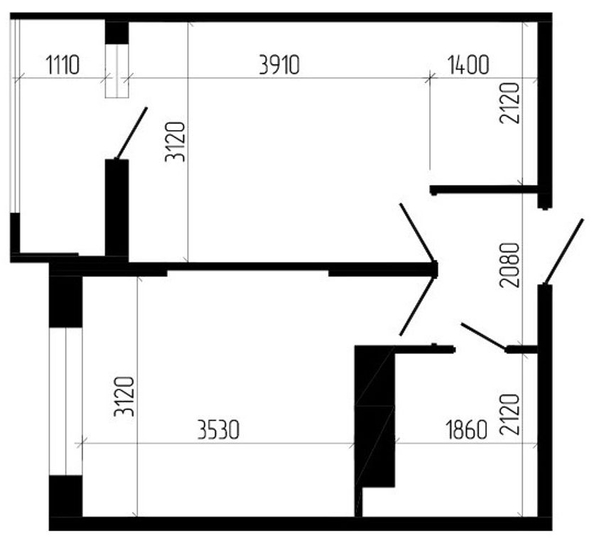
Продажа от застройщика 1 - комнатная квартира, общей площадью 35.9 кв.м.
Жилая площадь: 14.9 кв.м, кухня - 10.7 кв.м. предчистовая отделка. , окна выходят на улицу.
В квартире: 1 совмещенный санузел, 1 балкон
Квартира находится на 1 этаже 8-этажного дома.
Дом кирпич-монолит, год сдачи: 2026, новостройка Номер объявления SD23-386129.

М2 Девелопмент
По вопросам покупки обращаться:
Татьяна М2 Девелопмент
Позвонить
Скажите застройщику, что нашли это объявление на КРАСДОМЕ
Написать

Похожие объявления

Не можете найти нужный вариант?

Оставьте заявку на подбор объекта и мы отправим ее трем проверенным нами агентствам недвижимости. Они возьмут все вопросы поиска на себя.
Нажимая кнопку «Отправить заявку» вы соглашаетесь с политикой конфиденциальности.