Меню Поиск Разместить Избранное Кабинет

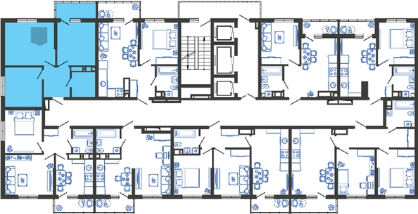
Продается 2-комн. квартира, 47.7 м²

Объявление 173505, обнов. 29.09.25
64
9 217 071 ₽ 193 230 ₽/м²
Следить за ценой

Подписка на изменение цены

Мы сообщим вам, если цена объекта изменится
или на почту
Нажимая кнопку «Подписаться» вы соглашаетесь с политикой конфиденциальности
Купить в ипотеку:
Адрес
Новороссийск, Южный р-н, ул Куникова литера 2 этап 2, кв. 70
Новостройка
Срок сдачи
4 кв 2026 — по проекту
Состояние
Остекление
Застройщик
Неометрия
Общая площадь
47.7 м²
Площадь кухни
11.5 м²
Этаж / всего
9 / 24
Тип дома
Монолит-кирпич
Тип и серия дома
Новой планировки
Санузел
Совмещенный
Окна выходят
Во двор
Ремонт/отделка
Без отделки

Продается квартира в жилом комплексе «Облака» от федерального девелопера «Неометрия».
Современный жилой комплекс расположен на границе Южного и Центрального районов Новороссийска — в развитой, благоустроенной локации всего в 5 минутах езды от моря и центра города. Здесь мягкий климат, чистый воздух и гармоничное сочетание природы и городской инфраструктуры.

Всё для комфортной жизни:
• Закрытая дворовая территория без машин;
• Подземный паркинг с доступом на лифте;
• Колясочные в каждом подъезде;
• Сквозные входные группы на уровне земли;
• Просторные квартиры с видами на горы и море.

Современное благоустройство:
Во дворах реализована концепция «активити-парка» — это большое зелёное пространство для отдыха и занятий спортом:
• Детские площадки, разделенные по возрасту ребенка;
• Зоны воркаута, йоги и командных игр, внесенные за периметр двора;
• Озеленённые аллеи и уютные места для прогулок;
• Общественные огороды для семейного досуга.

Развитая инфраструктура в шаговой доступности:
• 5 детских садов;
• 3 школы;
• 5 высших учебных заведений;
• 2 поликлиники;
• 2 крупных торговых центра;
• Супермаркеты и магазины;
• Удобные остановки общественного транспорта.

Застройка ведётся по 214-ФЗ с использованием эскроу-счетов, что обеспечивает безопасность сделки и прозрачность на всех этапах.
• 3 очередь проекта — сдача в IV квартале 2026 года, класс бизнес
• 2 очередь — сдана в 2024 г., класс комфорт-плюс
• 1 очередь — сдана в 2020 г., класс комфорт-плюс Номер объявления SD23-173505.

Неометрия
По вопросам покупки обращаться:
Позвонить
Скажите застройщику, что нашли это объявление на КРАСДОМЕ
Написать

Похожие объявления

Не можете найти нужный вариант?

Оставьте заявку на подбор объекта и мы отправим ее трем проверенным нами агентствам недвижимости. Они возьмут все вопросы поиска на себя.
Нажимая кнопку «Отправить заявку» вы соглашаетесь с политикой конфиденциальности.